6/705 Barkly Street, West Footscray, VIC 3012
West Footscray 2غرفة نوم Sunny city-fringe sanctuary
مزادSet to delight home buyers and investors alike, this sunny two-bedroom apartment offers updated interiors and superb outdoor entertaining in one of West Footscray’s most sought-after lifestyle pockets.
With shops, cafes, eateries and trains within strolling distance of home and the CBD less than 10km away, this is a fabulous opportunity for those seeking a relaxed village lifestyle and superb city-fringe convenience. Don’t miss your chance to inspect!
- updated two-bedroom apartment offering instant comfort in a prime West Footscray lifestyle location
- an outstanding opportunity for first home buyers and astute investors alike
- charming north-facing alfresco entertaining deck offering a private, leafy space for a quiet coffee in the sunshine and plenty of space to host summer BBQs for family and friends
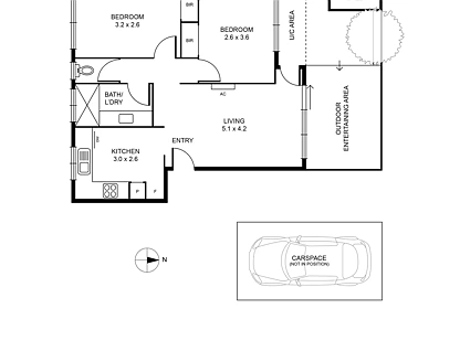
- sunny kitchen/dining featuring a well-appointed kitchen with electric cooking
- large living room
- two bedrooms with built-in robes
- luxe bathroom with floor-to-ceiling tiling, rainfall shower and incorporated laundry facilities + separate toilet
- split-system heating/cooling
- allocated off-street parking space
- perfectly positioned to enjoy the fabulous WeFo village lifestyle! Walk to Barkly Village to enjoy a vibrant community hub bursting with eateries, shops, cafes, bars and services, including the much-loved Inner West Swedish Baker, Migrant Coffee and the beautiful Chestnut Tree Bookshop. Walk to Central West Shopping Centre for relaxed shopping and a choice of supermarkets and enjoy easy bus access to the heart of Footscray for a world of international dining, buzzing nightlife and the fabulous Footscray Market
- sought-after school zone – Footscray West Primary School (13-minute walk) + Footscray High School (easy bus ride)
- only 9.5km from the CBD with regular city-bound trains from Tottenham Station, a 12-minute walk from home
First home buyers may be eligible for the new Australian Government 5% Deposit Scheme - More information can be found here; https://firsthomebuyers.gov.au/australian-government-5-percent-deposit-scheme
Information provided herein is believed to be accurate at the time of publishing, no responsibility is taken for any errors or omissions. It is the responsibility of the Purchaser to obtain independent professional advice and verification.




