3 North Esplanade, Point Boston, SA 5607
Point Boston 3chambre Architecturally Designed Coastal Masterpiece
$1,100,000You will instantly fall in love with this exquisitely designed and quality-built coastal residence, perfectly positioned in an elevated, commanding location on the sought-after North Esplanade in Point Boston.
From the moment you arrive, it's clear this home is something truly special-where sophisticated design meets the relaxed charm of coastal living. Set among other modern seaside homes, this residence offers a unique and luxurious lifestyle for those who value quality, privacy, and uninterrupted coastal views.
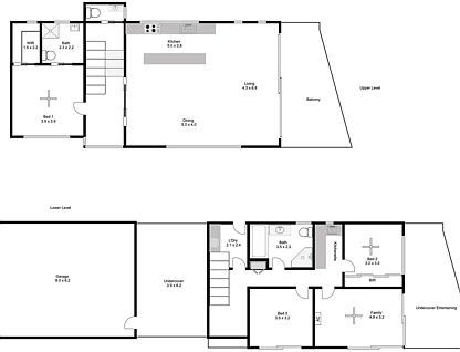
Spread across two thoughtfully designed levels, the home features:
- Three spacious bedrooms, including a stunning upstairs master retreat complete with walk-in robe and deluxe ensuite
- Two elegant bathrooms, plus a convenient third toilet upstairs
- A versatile lower level perfect for guests or multi-generational living, featuring two bedrooms, a stylish bathroom, comfortable lounge area, and a convenient kitchenette
- An upper level bathed in natural light, with open plan lounge, dining and gourmet kitchen showcasing quality appliances and seamless flow to the expansive entertaining deck that captures breathtaking views over the beach and bay
- A quiet reading nook or study zone upstairs, ideal for those seeking a peaceful corner to unwind
Outdoors, the low-maintenance, beautifully landscaped grounds complement the home's modern design. Enjoy the practicality of a double garage, covered breezeway, ample rainwater storage, and easy access to walking trails that meander along the coastline and down to the sandy beach.
Why you'll love living in Point Boston:
Wake each day to the sound of waves, breathe in the sea air, and soak up panoramic ocean views. Whether you're enjoying a morning walk along the trails, paddle boarding in the calm waters, or simply relaxing on your deck as the sun sets over the bay, this is coastal living at its absolute finest. Point Boston is fast becoming one of the most desirable lifestyle destinations on the Eyre Peninsula-peaceful, private, and just a short drive to the heart of Port Lincoln.
This rare offering delivers more than just a home-it promises an enviable lifestyle.
For all enquiries please call Carl Semmler or Jaclyn Hage.
*All information provided has been obtained from sources we believe to be accurate, however, we cannot guarantee the information is accurate and we accept no liability for any errors or omissions (including but not limited to a property's land size, boundary overlays, floor plans and size, building age and condition) Interested parties should make their own enquiries and obtain their own legal advice.




