116 Nolan Street, Whitfield, QLD 4870
Whitfield 4બેડરૂમ Elevated luxury with panoramic views
Now SellingPerched high in the leafy foothills of Whitfield, this architecturally designed residence offers a seamless fusion of contemporary elegance, resort-style living, and breathtaking mountain vistas. Every detail of this home has been thoughtfully crafted to capture the beauty of its surroundings while providing absolute comfort and sophistication.
Luxurious living on exclusive Nolan Street for executive buyers and families searching for an awe inspiring masterpiece that's quality, design and location is second to none. Intelligently designed and spread over 2 expansive levels, the home has been meticulously crafted with luxury and comfortability at front of mind. Designed for living and entertaining on a grand scale, the home is expertly positioned to enjoy uninterrupted city and mountain views with ocean glimpses.
- Set on a unique, elevated 2217m2 block in blue chip Whitfield
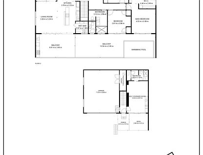
- Sprawling interiors with open plan living and dining plus media room
- Premium fixtures and fittings throughout, luxury lighting to enhance comfortability
- Intelligent floorplan maximising on the spectacular views and providing abundant natural light throughout
- Centrally located kitchen complete with butlers pantry/wet bar and ample bench space
- King sized master bedroom with direct access to pool, mountain views, walk in wardrobe and opulent ensuite
- 2 generous guest bedrooms upstairs both with built in wardrobes plus self contained bedroom downstairs complete with its own ensuite, kitchenette and outdoor deck
- Expansive outdoor balcony with stunning panoramic views and outdoor kitchen, perfect for entertaining year round
- Magnificent in-built pool with incomparable views and glass fencing
- Double lock up garage plus a separate, single car lock up garage
- Internal laundry, plenty of storage throughout
- Solar system installed to ease rising electricity costs
- Conveniently located approx. 1.1km from the suburbs hub of cafes, close to schools and transport and only a short drive from the CBD and domestic & international airports
DISCLAIMER
The Industry Estate Agents is a licensed real estate agency but is not qualified as a builder, inspector, or valuer. Information provided is sourced from third parties for general guidance only. While we believe it to be reliable, we do not guarantee its accuracy, completeness, or currency, and accept no liability for errors or omissions. This is not building, pest, planning, or legal advice. Buyers should conduct their own physical inspections, due diligence, and relevant searches. Staging and digital enhancements may be used and should not be taken as a representation of the property's current state. Independent professional and legal advice is strongly recommended.




