5 Iron Walk, Cranbourne, VIC 3977
Cranbourne 2બેડરૂમ All-New Luxury within the Canopy Estate
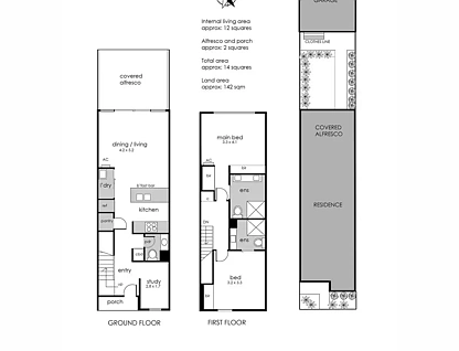
$620,000 - $660,000An unmatched parkside position within Cranbourne's Canopy Estate sets the tone for this recently completed Henley Homes residence, where space and privacy provide an impressive lifestyle just doors from Mustard Seed Playground.
Layered with added ceiling heights, square-set cornice, modern floors, and premium window furnishings, every detail found across the dual-level layout speaks of luxury and intention. Welcomed by a private front study nook that offers views of the surrounding gums, the ground floor unfolds into an inviting entertainment area, featuring spacious living and dining options that opens to a private outdoor terrace with a louvered roof, and a beautifully landscaped rear garden setting.
The well-appointed kitchen, complete with Technika appliances and a convenient walk-in pantry, introduces a series of high-quality wet zones, including two beautifully-executed ensuites, each accompanied by one-of-two first-floor bedrooms, while a chic powder room on the ground floor caters to guests. Featuring split-system heating and cooling, a European laundry, ample storage throughout, an oversized single garage with rear laneway access, and over six years left within the Builders Warranty. Positioned just behind Amstel Golf Club, and only moments from Barton Primary School, St Peters College, and Cranbourne Park Shopping Centre.




