8/124 White Street, Mordialloc, VIC 3195
Mordialloc 4ਬੈੱਡਰੂਮ Coastal Townhouse Elegance
$920,000 - $990,000Exemplifying refined contemporary living with an urban-coastal allure, this near-new four-bedroom, three-bathroom residence—crafted by the renowned Cera Stribley Architects—showcases a dynamic tri-level design of architectural finesse, sophisticated interiors, and light-filled spaces, all within one of Mordialloc’s most desirable lifestyle settings.
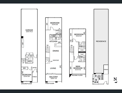
Beyond the private courtyard entry, a sleek hallway introduces a versatile ground-floor bedroom, ideal as a guest retreat, home office, or studio. Ascend to the first floor, the true heart of the home, where a striking designer kitchen—appointed with premium Bosch appliances, a stone breakfast island, integrated refrigerator, and bespoke finishes—seamlessly integrates with the open-plan living and dining domain. Expansive floor-to-ceiling glass doors extend to a generous covered balcony, capturing tranquil golf course vistas and providing an idyllic space for entertaining or quiet reflection throughout the seasons.
The first floor also offers a beautifully appointed bedroom with built-in robes, while the upper level is entirely devoted to rest and rejuvenation. Two spacious bedrooms, each complemented by built-in robes and private ensuites, deliver ultimate comfort, with one featuring a sumptuous bathtub for added indulgence.
Designed for effortless, low-maintenance living, the home is enhanced by elegant timber flooring, split-system heating and cooling, a European laundry, and secure intercom entry. A double lock-up garage with private laneway access completes this outstanding offering.
Superbly positioned in the vibrant heart of Mordialloc, this residence embodies the perfect harmony of urban sophistication and coastal serenity. Start your day with a coffee at Hendrik’s Café, explore the thriving dining and boutique scene along Main Street, or unwind on the nearby pristine sands of the bay. With Woodlands Golf Club moments away and zoning for Mordialloc Beach Primary School and Parkdale Secondary College, this is the ultimate address for modern family living by the coast. For more information about this outstanding low maintenance townhouse, please contact Christopher Rae on 0418 456 980.
Disclaimer:The floorplan, room measurements, and land size provided are approximate and for illustrative purposes only. Buxton makes no representations or warranties regarding the accuracy, completeness, or reliability of any floorplan, drawing, or rendering used in the advertising materials. Buxton disclaims any liability for errors, omissions, or inaccuracies in the depiction of the land, property, or any described features. Prospective purchasers should conduct their own due diligence and seek independent professional advice to verify all information.




