3 Page Avenue, Port Melbourne, VIC 3207
Port Melbourne 3ห้องนอน Private Negotiation
THE DEAL: $1.75M - $1.8MTHE DEAL
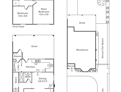
Set on generous land at both the front and rear, this well-proportioned family home delivers the kind of balance Port Melbourne residents know - well space, soul, and an undeniable sense of community.
Behind its charming Bank Home façade, original timber floors, ceiling mouldings and fireplaces bring instant warmth and authenticity. Downstairs, the flow is designed for ease with living and dining spilling into the kitchen, while a separate laundry keeps life practical. Step outside and you’ll find a sun-filled courtyard made for slow mornings and long afternoons complete with sauna for that end-of-day exhale.
Upstairs, three bright, sunny bedrooms are serviced by a central bathroom, a calm zone for growing families.
But it’s the lifestyle that makes this the place to be. Moments to the beach. Surrounded by quality schools. City-close yet coastal-calm. All wrapped in that unmistakable Port Melbourne energy where neighbours become friends, the shoreline sets your pace, and everything you need sits comfortably within reach.
SEALS THE DEAL
A home with character today. With scope to elevate tomorrow.




