输入搜索...
地址保密, Aintree, VIC 3336, 3房, 2浴, 独立屋

地址保密, Aintree, VIC 3336

Aintree 3房 步行两分钟至中心 3分钟达小学 后门通名校 宽敞开放式布局 现代厨房设计 主卧带套 上层多功能空间 易维护后院 内部通道车库 Under Construction close to Completion

$530,000
3 卧室
2 浴室
1 车位
162m² 建筑面积
167m² 土地面积
独立屋上市时间 7月3日墨尔本 西北区
  
  

Ray White Rockbank and Aintree自豪地呈献这处卓越住宅,精心打造以提供舒适优质的生活方式。完美坐落于Aintree——墨尔本最理想的西部郊区之一——这处家园定会令人印象深刻。


在这处地理位置优越的物业中,尽享奢华与便利的完美平衡,仅需2分钟步行即可到达充满活力的Woodlea Town Centre,步行仅3分钟即达Aintree Primary School。您还将享受直接通往Bacchus Marsh Grammar(经由后门入口)的便利,以及本地运动场、网球和篮球场、宽敞的游乐场和家庭友好的烧烤区。凭借包括本地公交和附近的Rockbank火车站在内的便捷交通选择,通勤变得轻松,所有必需设施近在咫尺。


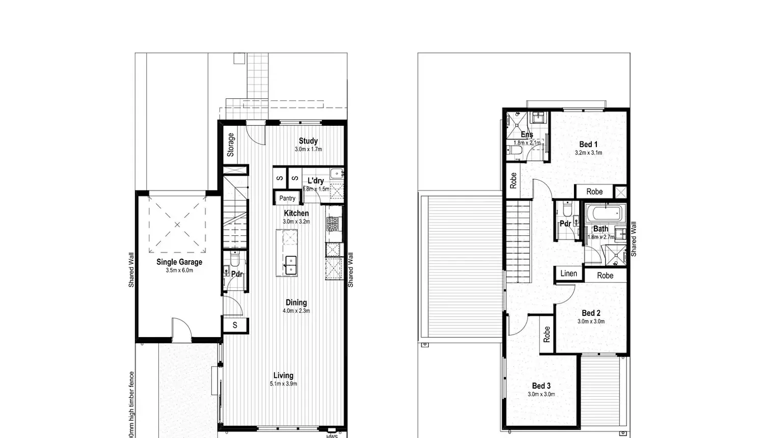
在这处优雅设计的开放式住宅中拥抱现代生活,完美契合当今生活方式。宽敞的布局无缝整合了起居、用餐和厨房区域,为招待宾客和日常家庭生活提供温馨宜人的环境。额外的灵活空间增强了家园的实用性——理想用于客房、家庭办公室或私人休憩区——提供舒适和实用性以满足您的需求。


厨房作为家园的活力中心,配有不锈钢燃气灶、内置食品储藏室和时尚的操作台,风格与功能无缝融合。优雅的橱柜不仅提升了厨房的精致美感,还提供充足的存储空间,为空间增添格调与实用性。


住宅上层包含三间比例协调的卧室,均配有内置衣柜,包括一间精心布置的主套房,提供私密宁静的休憩空间——理想用于放松。该层还配有时尚现代的浴室,设计兼顾家庭生活和宾客使用,以及一个多功能的额外空间,完美适合家庭办公室、书房或阅读角。


宽敞易维护的后院提供了功能与休闲的理想平衡——为儿童和宠物提供充足的活动空间,同时实现轻松的户外生活,几乎无需打理。


配备内部通道的安全封闭式车库提供安心与便利,特别适合墨尔本多变的天气条件。


无论您是寻求进入市场的首次购房者,还是追求高品质租赁资产的投资者,这处住宅在备受追捧的地点提供了极具吸引力的机会。


Under Construction close to Completion

Ray White Rockbank/Aintree proudly presents this exceptional residence, thoughtfully crafted with precision and care to deliver a lifestyle of comfort and quality. Perfectly positioned in the heart of Aintree-one of Melbourne's most desirable western suburbs-this home is sure to impress.

Enjoy the perfect balance of luxury and convenience in this superbly located property, just a short 2-minute stroll to the vibrant Woodlea Town Centre and only 3 minutes on foot to Aintree Primary School. You'll also enjoy direct access to Bacchus Marsh Grammar (via the rear entrance), local sporting grounds, tennis and basketball courts, a spacious playground, and family-friendly BBQ areas. With excellent transport options, including local buses and Rockbank train station nearby, commuting is effortless and every essential amenity is just moments away.

Embrace modern living in this elegantly designed open-plan home, perfectly suited to today's lifestyle. The spacious layout seamlessly integrates the living, dining, and kitchen areas, offering a warm and welcoming environment for both entertaining guests and everyday family life. An additional flexible space enhances the home's versatility-ideal for use as a guest bedroom, home office, or private retreat-providing comfort and practicality to suit your needs.

The gourmet kitchen stands as the vibrant centerpiece of the home, featuring a stainless steel gas cooktop, built-in pantry, and sleek benchtop that seamlessly blend style with functionality. Elegant cabinetry not only enhances the kitchen's refined aesthetic but also provides ample storage, adding both sophistication and practicality to the space.

The upper level of the home comprises three well-proportioned bedrooms, each with built-in robes, including a beautifully appointed master suite that provides a private and serene retreat-ideal for relaxation. This level is further enhanced by a sleek, modern bathroom designed to accommodate both family living and guest use, as well as a versatile additional space, perfect for a home office, study, or reading nook.

The expansive, low-maintenance backyard offers the ideal balance of functionality and leisure-providing ample room for children and pets to enjoy, while allowing for effortless outdoor living with minimal upkeep.

A secure lock-up garage with internal access offers both peace of mind and convenience, particularly suited to Melbourne's variable weather conditions.

Whether you're a first home buyer seeking to enter the market or an investor pursuing a high-quality rental asset, this residence presents a compelling opportunity in a sought-after location.

预约看房

展示即将到来的看房时间,支持预约与日历提醒

学校与学区

学校名单 学区范围 评分与距离

开发潜力

分区规则 可建强度 限高/覆盖率及管线要点

周边配套

周边商城 超市 交通 医疗 公园 体育设施与教会

Aintree 街区

安全状况

近年警方数据趋势与安全评分, 辅助风险判断

按首付 利率与年限估算月供与总成本

同区推荐

同区域 同价位的优选房源,便于横向对比

猜你喜欢

基于浏览与收藏记录的个性化推荐
房源编号:3326672最后更新:2025-07-03 13:48:41