7A Figtree Crescent, Figtree, NSW 2525
Figtree 4房 宽敞四卧设计 精致储物空间 优质美食厨房 朝北宽敞露台 楼下改造潜力 停车位充足 靠近购物中心 交通便捷 SPACIOUS FAMILY HAVEN!
拍賣 12月10日 星期三 17:30位于宁静、绿树成荫的角落,这栋精心呈现的四卧室住宅是风格、空间和功能的完美结合——是现代家庭的理想避风港。进入室内,发现宽敞的卧室,每间都经过精心设计,配有内置储物空间,为每个家庭成员创造舒适私密的港湾。家的中心设有两个宽敞的起居区,提供灵活性,既可以享受轻松的日常生活,也可以进行优雅的娱乐。令人惊叹的美食厨房,配有优质饰面和充足的储物空间,无缝连接至开放式餐厅和家庭区域。
轻松流向外,宽敞的朝北露台邀请全年享受。无论是举办夏季烧烤、庆祝特殊场合,还是简单放松,这个私人户外休闲区一定会令人印象深刻。楼下,一个绝佳的机会等待着——一个广阔的空间,潜力巨大,可改造为独立的老人套房、青少年天堂或终极娱乐区。该区域已准备好随您的家庭需求而发展。坐落在平坦、阳光充足的街区,低维护的花园,该物业还提供充足的停车位——非常适合船只、房车和家庭汽车。
位置优越,方便至Figtree Grove购物中心、公共交通,距离Wollongong繁华的CBD仅10分钟车程。悉尼仅一个多小时车程,附近还有多所著名学校,包括The Illawarra Grammar School、Edmund Rice College、St Therese Catholic School和Figtree High School。
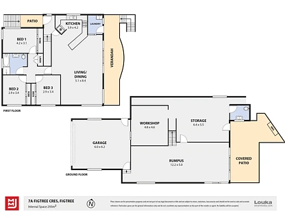
特色:
- 从地面层到入口的楼梯升降机。
- 全屋管道空调。
- 全屋全新粉刷。
- 朝北的平坦后院。
- 朝北的阳台/半封闭阳光房。
- 广阔的楼下区域,潜力巨大,可改造为独立的老人套房或大型家庭聚会的宏伟娱乐空间。
- 充足的停车位,足够容纳船只、房车和家庭汽车。
- 带附加工作间的遥控双车库。
- 步行距离至Figtree购物中心。
重要数字:
市政费:$534.78每季度
水费:$204.13每季度
土地面积:734m²
在房源上市前,请先关注我们的社交媒体查看所有房源——
@madisonphipps.realestate
*本广告由MMJ Real Estate (MMJ) 为广告和一般信息目的而准备。MMJ不保证、不表示或不担保本广告中的信息是正确的。任何意向方应自行核实所发布信息的准确性。
7A Figtree Crescent, Figtree, NSW 2525
SPACIOUS FAMILY HAVEN!
Tucked away in a peaceful, tree-lined pocket, this beautifully presented four-bedroom home is the perfect blend of style, space, and functionality - an inviting sanctuary for the modern family.
Step inside and discover generously proportioned bedrooms, each thoughtfully designed with built-in storage, creating a haven of comfort and privacy for every member of the family. The heart of the home features two expansive living areas, offering the flexibility to enjoy both relaxed everyday living and elegant entertaining. The stunning gourmet kitchen, complete with quality finishes and abundant storage, seamlessly connects to the open-plan dining and family zones.
Flowing effortlessly outdoors, the expansive north-facing covered alfresco invites year-round enjoyment. Whether hosting summer barbecues, celebrating special occasions, or simply unwinding, this private outdoor retreat is sure to impress.
Downstairs, an incredible opportunity awaits - a sprawling space brimming with potential to transform into a self-contained in-law retreat, teenage haven, or ultimate entertainment zone. This area is ready to evolve with your family's needs.
Set on a level, sun-drenched block with low-maintenance gardens, this property also offers an abundance of parking - perfect for the boat, caravan, and family cars.
Positioned for supreme convenience, you'll be just moments from Figtree Grove Shopping Centre, public transport, and only 10 minutes to Wollongong's vibrant CBD. Sydney is just over an hour away, and you'll find a selection of prestigious schools nearby, including The Illawarra Grammar School, Edmund Rice College, St Therese Catholic School, and Figtree High School.
FEATURES:
- Stair inclinator from the ground level to entry.
- Ducted air conditioning throughout.
- Freshly painted throughout.
- North facing level backyard.
- North facing balcony / semi enclosed sunroom.
- Sprawling downstairs area with potential for a self-contained in-law retreat or impressive entertaining space for large family gatherings.
- Abundance of parking enough for the boat, van and family of cars.
- Double remote-control garage with additional workshop.
- Walking distance to Figtree shopping centre.
Important Numbers:
Council Rates: $534.78 per quarter
Water Rates: $204.13 per quarter
Land Size: 734m²
See all of our listings FIRST on our socials before they hit the market–
@madisonphipps.realestate
*This advertising has been prepared by MMJ Real Estate (MMJ) for the purpose of advertising and general information only. MMJ do not guarantee, represent, or warrant that the information contained in this advertising is correct. Any interest party should undertake their own inquiries as to the accuracy of the information published.




