110/83 Bay Street, Brighton, VIC 3186
Brighton 2房 高端奢华设计 豪华室内空间 精致厨房设备 高级装饰品配备 完善生活设施 优越地理位置 生活品质尽在其中 Uncompromising luxury with elite resident privileges
Private Sale $1,550,000位于布莱顿最新的建筑地标The International,由屡获殊荣的Carr公司设计,这座精致住宅展现了真正的豪华,结合了高端住宅的气派和比例。每一个细节都体现了一种轻松优雅的生活方式,配备了出色的现场设施,将日常生活变得非凡。
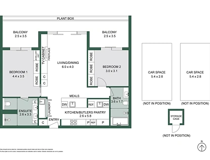
这间公寓占地97平方米的精致室内空间,外加24平方米的私人户外庭院,展示了宽敞的朝北生活和餐饮室,配有Planika壁炉,这一特色仅在少数住宅中体现。由绿植和花箱环绕的户外娱乐露台,带来了宁静和与户外的联系感。
厨房作为美食展示的焦点。Gaggenau电器,时尚隐藏的Leibherr冰箱和冰柜,隐藏式排气罩和大理石饰面营造出令人惊叹的视觉效果。早餐吧台和备餐室配有葡萄酒冰箱,完成了这个烹饪中心,没有任何细节被忽视。
两间卧室分别位于平面图的两侧,保证隐私,每间卧室均通往露台。主卧室配有豪华的带双梳妆台和倾泻式淋浴的套间。中央浴室为第二间卧室提供服务,配有深浸浴缸和独立的淋浴。大理石在浴室、厨房和隐藏的欧洲洗衣房中流淌,营造出视觉和谐与安静一致。
高级装饰品清单继续包括定制的家具,包括定制的珠宝展示台,中央供暖和空调,设计师窗帘配有卷帘和S型窗帘,视频安全系统,两个安全车位并列在产权上,阳台预先设置的浇水系统,以及由Tract设计的景观。
The International不仅是一个家,还提供了一个完全策划的生活方式。居民可享用私人餐厅、行政办公室、贴心礼宾服务、代客停车服务、现场旗舰餐厅、配备Vine and Vault定制酒窖的令人印象深刻的酒窖,以及带烧烤区的宽敞屋顶露台,为娱乐而建。大堂设有豪华休息区和开放式壁炉,从第一刻起就营造出一种氛围。
距离海滩、Bay Street的咖啡馆、精品店、餐厅和交通仅几步之遥,这处住宅为那些期望更多的人提供了出色的生活。非常适合重视声望的高管、追求卓越的换置小户型买家,或者希望拥有无忧生活方式但又不愿妥协质量的全球旅行者。
110/83 Bay Street, Brighton, VIC 3186
Uncompromising luxury with elite resident privileges
Positioned in Brighton's newest architectural landmark, The International by award-winning firm Carr, this sophisticated residence delivers authentic luxury paired with the presence and proportions of a high-end home. Every detail speaks to a lifestyle of ease and elegance, supported by exceptional on-site amenities that transform everyday living into something extraordinary.
Spanning 97sqm of refined internal living plus 24sqm of private outdoor sanctuary, the apartment showcases a spacious north-facing living and dining room with a Planika fireplace, a feature incorporated in only a select few residences. The alfresco entertaining terrace, framed by greenery and planter boxes, brings a sense of calm and connection to the outdoors.
The kitchen stands apart as a gourmet showcase. Gaggenau appliances, a sleekly concealed integrated Leibherr fridge and freezer, a concealed rangehood, and marble finishes create a stunning visual impact. A breakfast island and butler's pantry with wine fridge complete this culinary centrepiece where no detail has been overlooked.
The two bedrooms are zoned on either side of the floorplan for privacy, each opening to the terrace. The main bedroom features a luxurious ensuite with twin vanities and a cascading rain shower. A central bathroom serves the second bedroom with a deep soaking tub and its own rain shower. Matching marble flows throughout the bathrooms, kitchen and hidden European laundry, creating visual harmony and quiet consistency.
The list of premium finishes continues with custom joinery including a bespoke jewellery station, ducted heating and air conditioning, designer window treatments with roller blinds and S-fold curtains, video security, two secure car spaces included on title, a pre-programmed watering system for the balcony, and landscaping by Tract.
More than just a home, The International offers a fully curated lifestyle. Residents enjoy access to a private dining room, executive offices, attentive concierge, valet pods, on-site flagship restaurant, an impressive wine room with a quality Vine and Vault bespoke wine cellar, and an expansive rooftop terrace with BBQ area built for entertaining. The lobby welcomes with plush lounges and open fire, creating an entrance that sets the tone from the first moment.
Moments from the beach, Bay Street's cafés, boutiques, restaurants, and transport, this residence offers outstanding living for those who expect more. Perfect for executives valuing prestige, downsizers seeking excellence, or global travellers wanting a lock-and-leave lifestyle without compromising on quality.
Disclaimer:
All information provided, including floorplans, room dimensions, and land size, is indicative only and intended for general guidance. Belle Property does not guarantee the accuracy or completeness of any plans, illustrations, or representations shown in marketing materials. We recommend that all prospective buyers conduct their own research, seek independent advice, and confirm all details independently prior to making any property-related decisions. Belle Property accepts no responsibility for any discrepancies or misstatements.




