2/4 Moore Street, Caulfield South, VIC 3162
Caulfield South 3房 Ormond Village后院位置 1950年代精品单元 三居室易维护 北向客厅 全天阳光 私密庭院花园 主卧套间 现代厨房Neff电器 中央供暖空调 单间车库 Caulfield South学区 便捷生活选择 Garden Villa with Prized Lifestyle Proximity
拍賣 12月13日 星期六 11:30享受位于Ormond Village附近的1950年代精品别墅区内的后院位置,这套吸引人的三居室单元房是进入这个备受追捧的区域的绝佳选择,将咖啡馆、公园和公共交通都设在门口几分钟之内。随时可以享受,易于维护,并且有潜力根据您的喜好进一步升级,这是一个绝佳的生活方式机会,其投资价值也完全符合长期利益。
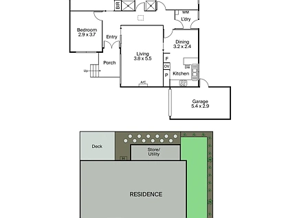
保留时代的魅力,拥有原始的硬木和瓷砖地板,宽敞的单层布局迎接全天阳光和绝对隐私,北向的客厅通向后部焕然一新的厨房和用餐区,配有Neff 60mm oven and dishwasher。娱乐和放松的享受延伸到超大的洗衣房,到一个出色的、环绕的庭院花园,充满隐私和绿意,最终在后部形成一个阳光甲板。
主卧室是三个卧室中最大的,拥有私密的现代化套间,而第二和第三卧室则靠近第二个浴室,也经过翻新,设有独立的淋浴和浴缸。配有中央供暖、分体式空调、单间锁车库、储藏室,这个复古珍品在便利设施和生活方式方面确实无与伦比,位于备受追捧的Caulfield South Primary School区域内,靠近Ormond和McKinnon的购物和交通区,Glen Huntly Road,E.E. Gunn Reserve和Kilvington Grammar School。
2/4 Moore Street, Caulfield South, VIC 3162
Garden Villa with Prized Lifestyle Proximity
NO OWNERS CORPORATION
Relishing a rear-of-block position within a 1950s boutique villa block just moments from Ormond Village, this attractively presented, three-bedroom unit is a wonderful entry into a coveted pocket, placing cafes, parks and public transport all within minutes of the door. Ready to be enjoyed, effortless to maintain, and with the potential to be further upgraded to your own tastes, this is a terrific lifestyle opportunity with investment credentials that also make perfect longer-term sense.
Retaining the era’s charm with original hardwood and tiled flooring, the generous single-level layout invites all-day sun and absolute privacy, with a north-facing living room leading to a refreshed kitchen and meals area to the rear, complete with a Neff 60mm oven and dishwasher. Entertaining and relaxed enjoyment extends through the oversized laundry to a brilliant, wrap-around courtyard garden, rich in privacy and greenery, that culminates in a sun-deck to the rear.
The main bedroom is the largest of the three, boasting a private, modern en-suite, whilst the second and third bedrooms enjoy near access to the second bathroom, also updated, which features a separate shower and bath. Complete with ducted heating, split system air conditioning, a single lock-up garage with additional parking for one, storage room, this vintage gem is truly unbeatable for amenity and lifestyle, set within the sought-after Caulfield South Primary School zone, and moments from Ormond and McKinnon shopping and transport precincts, Glen Huntly Road, E.E. Gunn Reserve and Kilvington Grammar School.




