1 Brewster Street, Essendon, VIC 3040
Essendon 3房 20年代加州风格 丰富Baltic pine地板 深色jarrah装饰 宽敞后院 多功能空间 便捷通勤 历史悠久的Windy Hill oval Auction Saturday 29th November at 10:30am
拍賣 11月29日 星期六 10:30Essendon近期所见最具启发性的前景之一,这栋20年代的加州风格房屋提供了利用两个突出临街面、发挥固有魅力并执行标志性翻新以创造Windy Hill最优秀住宅的激动人心的机会。
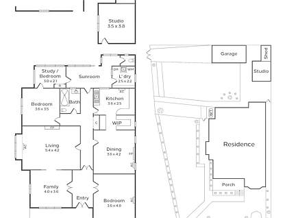
自一个多世纪前建造以来仅第二次出售,这栋住宅的永恒立面将Queen Anne风格融入教科书式的Bungalow设计;为即将到来的空间增添了迷人魅力。Baltic pine地板的丰富色调、深色jarrah装饰和复杂的blackwood镶板与充足阳光相结合,营造出温暖、宜人且通风的氛围,客厅和餐厅的壁炉在冬季营造出舒适的夜晚。多功能的前厅/第三卧室与宽敞的主卧室和客房相得益彰,而独立的studio/第四卧室则可作为专用工作室。带有车棚和工具房的宽敞后院非常适合孩子们玩耍,提供了充足的扩展空间,并可选择利用第二个临街面建造与主屋分开的车库。其他亮点包括带有terrazzo地板的浴室、配备燃气烹饪的厨房、后阳台风暴室和书房/婴儿房空间、全尺寸洗衣房、额外的WC以及反向循环供暖/制冷。
靠近Glenbervie Station、59路有轨电车和CityLink,便于便捷通勤,步行即可到达历史悠久的Windy Hill oval以及Napier、Fletcher和Rose Street的商店、咖啡馆和餐厅,同时靠近Essendon、St Therese’s和St Monica’s Primary Schools,属于Strathmore Secondary学区,以及享有盛誉的St Columba’s、St Bernard’s、Ave Maria、Lowther Hall和PEGS。
SEALS THE DEAL
经过极其精心的保存,原始特征是未来任何翻新的理想基础。
*该地块和/或住宅的所有潜在用途均需获得council批准。
1 Brewster Street, Essendon, VIC 3040
Auction Saturday 29th November at 10:30am
THE DEAL
As inspiring a prospect as Essendon has seen for some time, this ‘20s Californian offers a stirring opportunity to utilise two prominent frontages, harness inherent charm, and execute a landmark renovation to create one of Windy Hill’s finest residences.
Offered for just the second time since its construction over a century ago, the home’s timeless façade weaves Queen Anne sensibility into textbook Bungalow design; a charming precursor for spaces to come. The rich tones of Baltic pine floorboards, dark jarrah accents, and intricate blackwood panelling join a wealth of sunlight in creating an atmosphere that’s warm, inviting, and airy, with wood fireplaces in living and dining rooms making for cosy nights come wintertime. A versatile front sitting room/third bedroom complements sizeable master and guest rooms, while a standalone studio/fourth bedroom doubles as a dedicated workspace. A substantial backyard with a carport and shed is perfect for kids to run around in, provides plenty of room to extend into, and gives the option to capitalise on a second frontage to build a garage distinct from the main home. Other highlights include a terrazzo-floor bathroom, kitchen with gas cooking, back sunroom and study/nursery spaces, a full-size laundry, extra WC, and reverse-cycle heating/cooling.
Close to Glenbervie Station, the 59 Tram, and CityLink for streamlined commuting, it’s only steps to historic Windy Hill oval and the shops, cafés, and restaurants across Napier, Fletcher, and Rose Streets, while near Essendon, St Therese’s, and St Monica’s Primary Schools, zoned Strathmore Secondary, and esteemed St Columba’s, St Bernard’s, Ave Maria, Lowther Hall, and PEGS.
SEALS THE DEAL
Preserved with the utmost care, original features are ideal foundations for any future revamp.
*All potential uses of the parcel and/or dwellings are subject to council approval.




